WELCOME
PROJECTS
ON THE BOARDS
ABOUT
PUBLICATIONS
NEWSLETTERS
CONTACT
VISIT HOUZZ.COM
WELCOME
PROJECTS
ON THE BOARDS
ABOUT
PUBLICATIONS
NEWSLETTERS
CONTACT
VISIT HOUZZ.COM
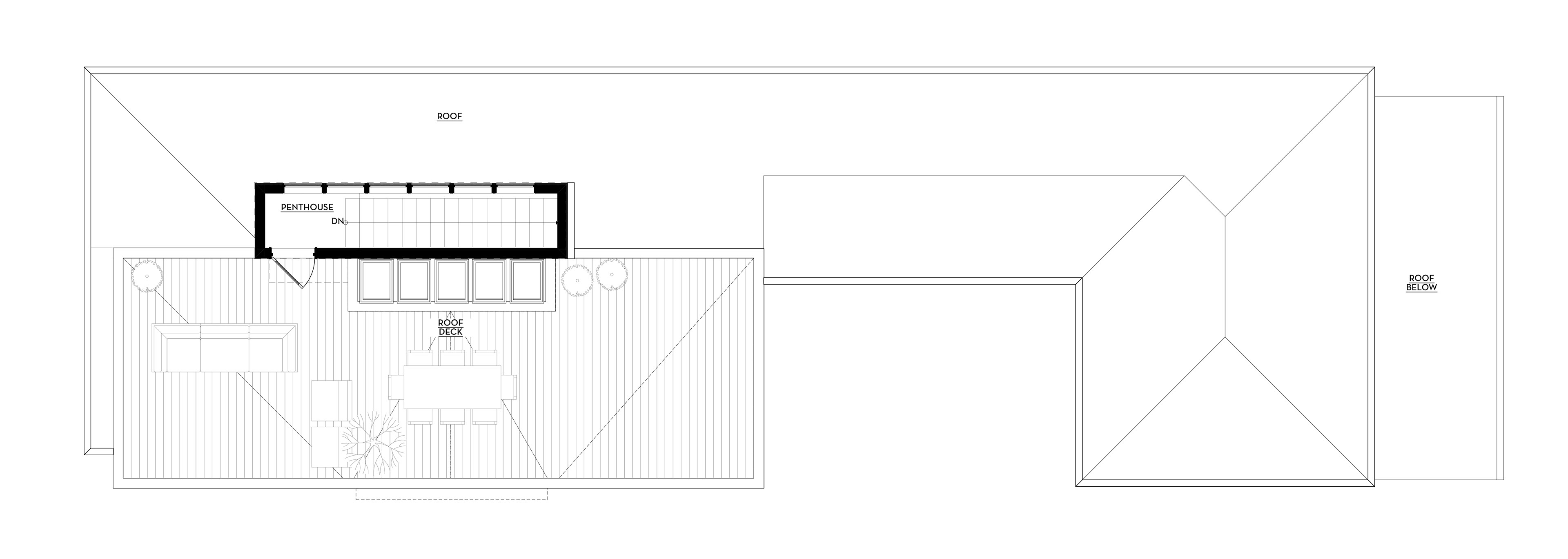
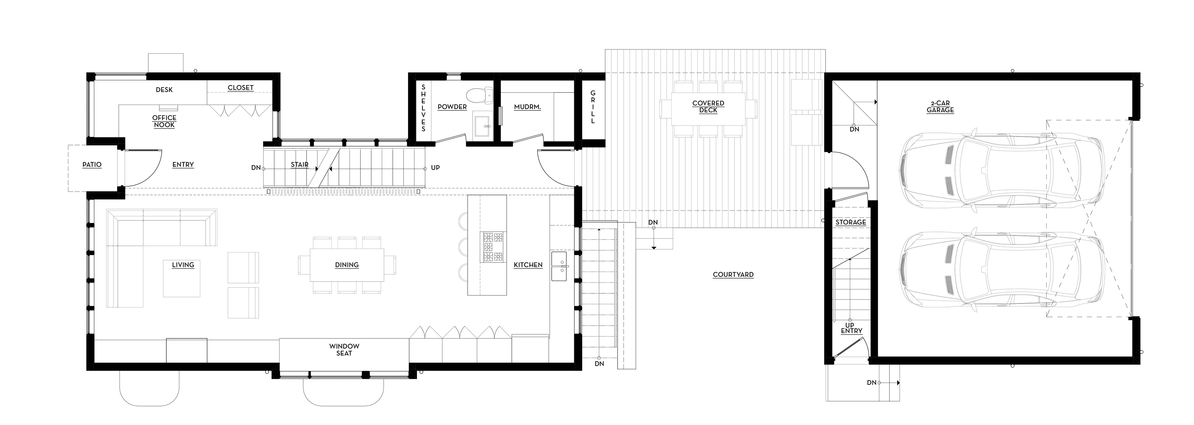
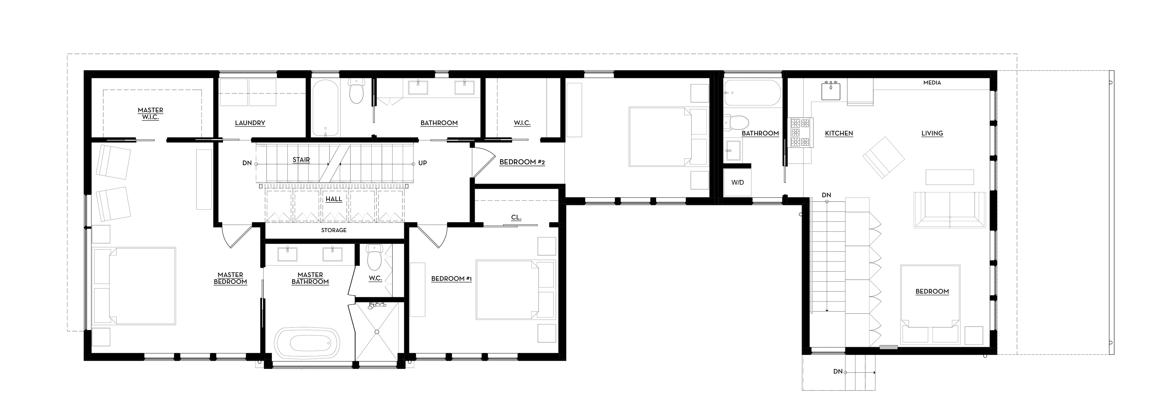
capitol hill residence
basement level
main level
second level
rooftop level
↑
Back to Top