WELCOME
PROJECTS
ON THE BOARDS
ABOUT
PUBLICATIONS
NEWSLETTERS
CONTACT
VISIT HOUZZ.COM
WELCOME
PROJECTS
ON THE BOARDS
ABOUT
PUBLICATIONS
NEWSLETTERS
CONTACT
VISIT HOUZZ.COM
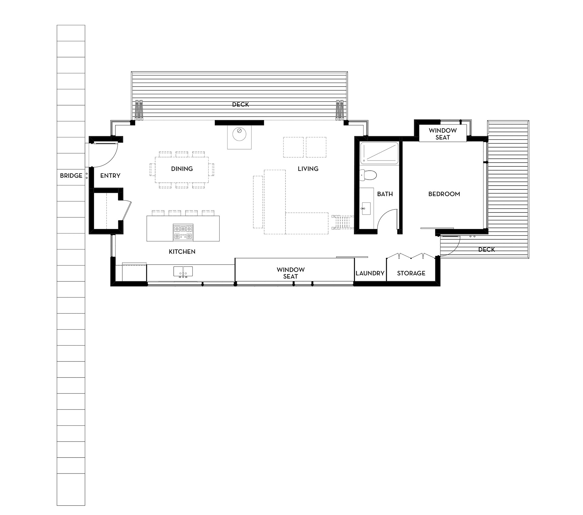
dogwood cabin
↑
Back to Top